PRESTIŻOWY LOKAL NA WYNAJEM-PŁOCK-CENTRUM MIASTA-PARTER
- 4 pokoje
Informacje
- Powierzchnia użytkowa: 282 m²
- Cena za mkw : 29.08 zł
- Nr oferty: LWP338
- Liczba pokoi: 4
- Piętro : 0
- Stan nieruchomości: dobry
Szczegóły oferty
- Kategoria: Wynajem
- Rodzaj : Lokale użytkowe
- Czynsz: 8,200.00 zł
- Typ kaucji: 1-krotność czynszu
- Dodatkowe opłaty: 1500
- Dostępność: do uzgodnienia
- Forma własności: własność
Budynek
- Stan instalacji: stan dobry
- Ogrzewanie: miejskie
- Prąd: Tak
- Siła: Tak
- Źródło wody pitnej: woda miejska / wodociąg
- Internet: Tak
- Bezpieczeństwo: alarm, monitoring/kamery
- Dostosowane dla osób niepełnosprawnych: Tak
- Nadaje się na biuro: Tak
Opis
-
Opis
:
Topowa lokalizacja
Lokal położony jest w ścisłym centrum miasta, przy reprezentacyjnej ulicy o bardzo dużym natężeniu ruchu pieszego i samochodowego.
W bezpośrednim otoczeniu znajdują się banki, sklepy, punkty usługowe, instytucje publiczne oraz parking, co gwarantuje stały napływ klientów i komfort dojazdu.Charakterystyka nieruchomości
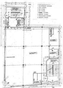
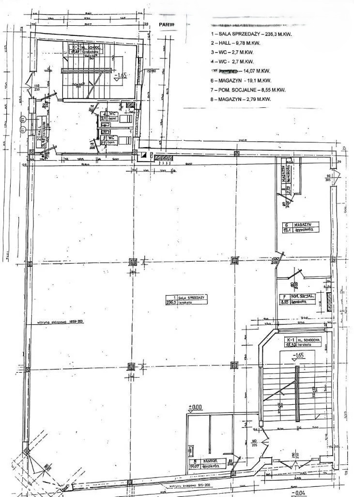
- Powierzchnia: 282 m²
- Parter – wejście bezpośrednio z ulicy
- Brak barier architektonicznych – zero schodów
- Lokal jednopoziomowy, funkcjonalny i łatwy w aranżacji
- Duże, reprezentacyjne witryny wystawowe doskonale eksponujące działalność
Idealny pod salon sprzedaży, prestiżowe biuro, gastronomię, showroom, klinikę, studio usługowe lub siedzibę firmy.
Układ pomieszczeń
- imponująca sala główna ok. 200 m² – idealna pod ekspozycję lub obsługę klientów
- 3 pomieszczenia zaplecza (ok. 6–10 m² każde)
- toaleta
- oddzielne pomieszczenie z prysznicem
- pomieszczenie socjalne
Dodatkowym udogodnieniem jest niezależne wejście na zaplecze z zewnątrz, zapewniające wygodną obsługę dostaw i zaplecza technicznego.
Kluczowe atuty
✔ prestiżowa lokalizacja w centrum miasta
✔ parter, wejście bezpośrednio z ulicy
✔ lokal bez barier – idealny również dla osób z niepełnosprawnościami
✔ duże witryny zwiększające rozpoznawalność marki
✔ elastyczne przeznaczenie – praktycznie każda branża
✔ system alarmowy
✔ możliwość powiększenia powierzchni:
– piwnica ok. 250 m²
– dodatkowe mniejsze lokaleMedia
Lokal w pełni uzbrojony:
- woda
- prąd
- gaz
- internet
- telefon
Warunki najmu
- Czynsz: 8 200 zł netto / miesiąc
- Opłaty eksploatacyjne: ok. 1 500 zł (ogrzewanie, woda, wywóz śmieci, pozostałe)
- Termin dostępności: do uzgodnienia
Wszystkie zdjęcia zamieszczone w ogłoszeniu stanowią własność autora i są chronione prawem autorskim. Zabrania się ich kopiowania, rozpowszechniania, modyfikowania oraz wykorzystywania w jakiejkolwiek formie bez pisemnej zgody właściciela. Każde nieautoryzowane użycie zdjęć będzie stanowiło naruszenie praw autorskich i może skutkować konsekwencjami prawnymi.
Wszelkie informacje dotyczące nieruchomości zamieszczone przez Leo-Home Nieruchomości nie stanowią oferty w rozumieniu Kodeksu Cywilnego. Dokładamy najwyższej staranności, aby przedmiotowe informacje były zaprezentowane możliwe najbardziej szczegółowo i wyczerpująco, jednak wobec faktu, że pochodzą one od innych osób, Leo-Home nie ponosi odpowiedzialności za ich szczegółowość i dokładność
Lokalizacja
- Położenie i wygląd działki: teren płaski
- Zabudowa w okolicy: osiedle bloków mieszkalnych, obiekty handlowo-usługowe
- Głośność: cicho
- Przyroda w okolicy: rzeka

